Convert studio into a 2-3 room apartment
- Dimensions: 25 m²
- Number of rooms: 2/3 after interior redesign
- Style: Contemporary with respect for the historic character of the place
- Objectives: Modernize, optimize space
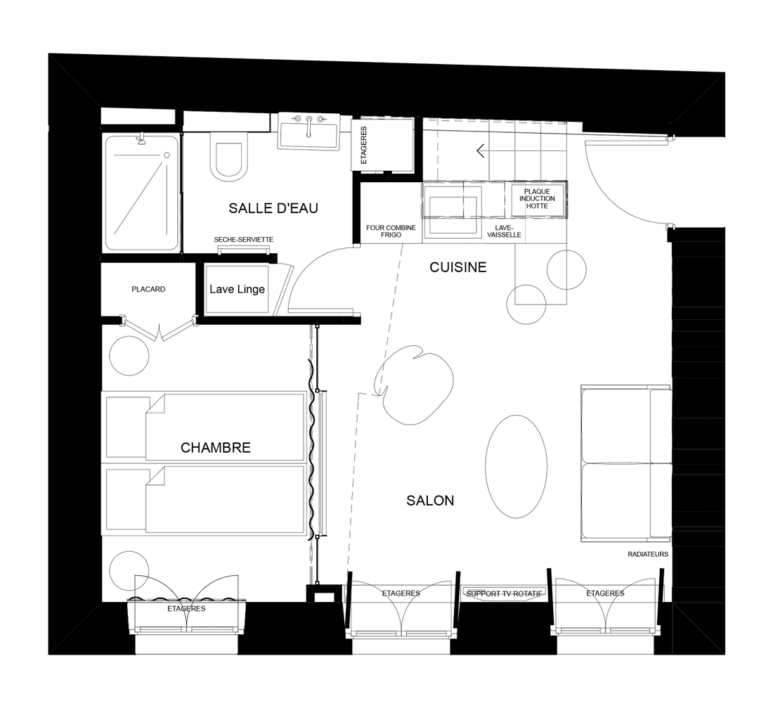
Niché au coeur du Marais, ce studio parisien d’une surface de 25m2 au sol a été transformé en appartement de villégiature pour un couple souhaitant séjourner régulièrement et confortablement en famille à Paris. Entièrement repensé, cet appartement atypique dispose désormais d'un séjour avec cuisine ouverte, d'une véritable chambre et d'une mezzanine.
Les souhaits des propriétaires : créer un appartement 2/3 dans un studio parisien
Les propriétaires, habitant à Nancy, souhaitaient pouvoir séjourner en couple ou en famille avec un confort optimal dans un appartement de villégiature de 2/3 pièces.
L’idée d’aménagement principale de la rénovation a donc été de conserver la mezzanine existante afin de l’utiliser comme dortoir pour les enfants et petits-enfants, et de créer une chambre séparée, avec un accès à la salle d’eau depuis le séjour.
Le parti pris de la rénovation : conserver l’identité du lieu
Esthétiquement, l’objectif n’était de ne pas modifier l’enveloppe existante de l’appartement - les poutres et murs en colombage étant les dignes représentants de l’identité du lieu et de ce quartier historique de Paris. Mais il était évident que l’intervention nouvelle serait contemporaine, le but étant de magnifier le volume existant ainsi que d’apporter la touche de modernité nécessaire.
L’enjeu de la rénovation : optimiser tous les espaces utiles de l’appartement
L’enjeu de ce projet d’architecture d’intérieur était de construire et d’optimiser tous les espaces utiles (sanitaires, cuisine, rangements, escalier) en les plaçant en périphérie de l’appartement. Cela permet d’obtenir un espace salon – salle de séjour le plus grand possible malgré une surface au sol limitée. Tous ces espaces sont donc savamment assemblés les uns dans les autres.
L’escalier se fait prolongement du sol en chêne massif. Les marches sont utilisées par des tiroirs de rangements. A mi-hauteur, l’escalier se transforme plan de travail et en tablette dinatoire.
La cuisine et le garde-corps de la mezzanine produisent un ensemble de volume traité dans une même couleur. La structure en métal noir en forme de croisillon habille l'extrémité du plan de travail de la cuisine. Cet élément visuellement très présent assure une fonction de support des meubles hauts mais fait également écho à la structure de la verrière, en multipliant les jeux de contraste noir/blanc/bleu clair.
La salle d’eau est entièrement revêtue d’un carrelage imitation terrazzo, qui joue là aussi sur l’opposition entre le noir et le blanc. Une porte de placard dissimule l’espace lingerie (lave-linge et divers rangements). La sous-face de l’escalier est occupée par des étagères.
La chambre est séparée du séjour par une verrière en métal noir, on y accède via deux portes vitrées coulissantes. Une double porte de placard, de la même couleur que le mur révèle une penderie. L’espace est définitivement optimisé.
Pour ne pas dénaturer l'intérieur de cet appartement de caractère et l’esprit historique du quartier, l'architecte a choisi de mettre en valeur les poutres anciennes dont le côté rustique tranche avec le reste de l’appartement.
En ce qui concerne les fenêtres, l’architecte a joué sur la verticalité en habillant les fenêtres de noir et en installant des volets en bois intérieurs qui accentuent encore la hauteur sous plafond (3,25 mètres). Pour éviter les espaces perdus, des rangements ont été aménagés sous les fenêtres, ainsi qu'un placard fermé sous la télévision permettant de ranger des câbles et la box internet.
Nestled in the heart of the Marais, this 25m² Parisian studio has been transformed into a holiday apartment for a couple wishing to stay regularly and comfortably with family in Paris. Completely redesigned, this unique apartment now features a living room with open kitchen, a real bedroom, and a mezzanine.
Owners’ wishes: creating a 2/3-room apartment from a Parisian studio
The owners, living in Nancy, wanted to be able to stay as a couple or with family in optimal comfort in a 2/3-room holiday apartment.
The main design idea of the renovation was to keep the existing mezzanine to use it as a dormitory for children and grandchildren, and to create a separate bedroom with access to the bathroom from the living room.
The renovation approach: preserving the identity of the place
Aesthetically, the aim was not to alter the apartment’s existing envelope — the beams and half-timbered walls being true representatives of the identity of the place and this historic district of Paris. But it was obvious that the new intervention would be contemporary, the goal being to enhance the existing volume and bring the necessary touch of modernity.
The challenge of the renovation: optimizing all useful spaces of the apartment
The challenge of this interior design project was to build and optimize all useful spaces (bathroom, kitchen, storage, staircase) by placing them around the periphery of the apartment. This makes it possible to obtain the largest possible living and dining area despite the limited floor space. All these elements are cleverly integrated into one another.
The staircase becomes an extension of the solid oak floor. The steps are used as storage drawers. Midway up, the staircase transforms into a work surface and dining shelf.
The kitchen and mezzanine guardrail form a unified volume treated in the same color. A black metal cross-shaped structure dresses the end of the kitchen countertop. This visually striking element supports the upper cabinets while also echoing the glass partition structure, multiplying the contrasts of black/white/light blue.
The bathroom is entirely clad in terrazzo-effect tiles, also playing on the contrast between black and white. A closet door conceals the laundry area (washing machine and various storage). The underside of the staircase is fitted with shelves.
The bedroom is separated from the living room by a black metal glass partition, accessed via two sliding glass doors. A double closet door, painted the same color as the wall, reveals a wardrobe. The space is fully optimized.
To preserve the character of this apartment and the historic spirit of the district, the architect chose to highlight the old beams, whose rustic look contrasts with the rest of the apartment.
As for the windows, the architect played on verticality by framing them in black and installing interior wooden shutters that further emphasize the ceiling height (3.25 meters). To avoid wasted space, storage units were added under the windows, along with a closed cabinet under the TV to store cables and the internet box.
